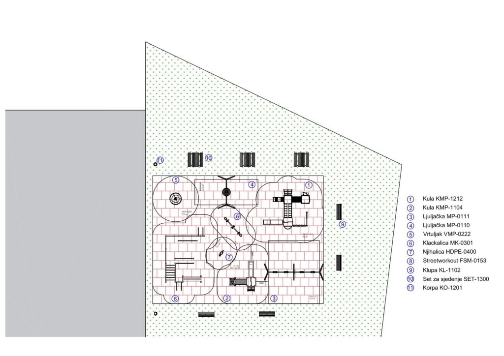
Započeli su radovi na izgradnji dječjeg igrališta na zelenoj površini u dvorištu Osnovne škole “Uskoplje” na površini od 300 m².
U prvoj fazi planirani su armirano-betonski radovi, odnosno priprema podloge za postavljanje gumene antistres podloge koja će osigurati veću sigurnost djece prilikom igre i boravka na igralištu.
Završetak projekta očekuje se do sredine travnja, a ukupna vrijednost investicije iznosi 90.000 KM.
Investitor projekta je Mjesna zajednica Gornji Vakuf-Uskoplje 2, dok su sredstva osigurali Ministarstvo prostornog uređenja, graditeljstva i državne imovine Republike Hrvatske te Vlada KSB/SBK.
Ovaj projekt predstavlja značajan iskorak u stvaranju sigurnijeg i kvalitetnijeg prostora za igru i tjelesnu aktivnost učenika Osnovne škole “Uskoplje”. Novo igralište omogućit će djeci bolje uvjete za razvoj motoričkih sposobnosti, druženje i boravak na otvorenom, što je posebno važno za njihovo zdravlje i cjelokupni razvoj.
Istovremeno, igralište će imati širi značaj za lokalnu zajednicu, jer će postati prostor susreta, druženja i jačanja zajedništva među mještanima, čime će dodatno obogatiti društveni život i unaprijediti kvalitetu življenja u Gornjem Vakufu-Uskoplju.











